Наша кнопка :

Adverno
Код кнопки

Объявление

Таунхаус «Borispol Village» от владельца - Продать дом

Код: 181119 Создано: 25-03-2021 01:05
Таунхаус «Borispol Village» от владельца

Цена:

55 000 грн.

Владелец: Все объявления этого владельца

u66900

0% положительных отзывов
Общее колличество отзывов пользователя 0, что составляет 0% от максимального количества отзывов полученные самым активным пользователем нашего сайта. Количество положительных отзывов: 0. Количество отрицательных отзывов: 0.
Тип объявления:Частные объявления - продам, предлагаю
Состояние:Хорошее состояние
Категория:Продать дом
Регион:Украина, Киев и область
Реклама:

Продаётся таунхаус от владельца в «Borispol Village»
Киевская область, г. Борисполь, ул. Полевая 1/1
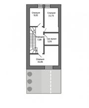
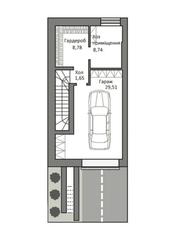
Таунхауз состоит из 3 этажей.
На цокольном расположены гараж и хозяйственные помещения, на первом – кухня и гостинная, а на втором – 3 спальни.
Простая и функциональная планировка позволит использовать каждый из 149 кв.м. площади с максимальной эффективностью.
Так же для дома предусмотрен задний двор.
Окна дома выходят на тихий частный сектор.
Территория ЖК 2,67 га.
На территории есть футбольное поле, детская площадка и много места для прогулок.

Стены из кирпича с утеплением и с лицевым кирпичом.
Перегородки кирпич, пеноблок.
Установлены металлопластиковые окна со стеклопакетами.
Установлены обогревательные элементы по всему дому (батареи, газовый котёл).
Установлен счётчик газа, электричества, холодной и горячей воды.
Стяжка полов.
Штукатурка стен во всех комнатах, кроме санузлов.
В дом заведен газ, вода, электричество.
По всему дому разведены электрокоммуникации, вода
Установлены ворота в гараж.
Установлена запорная арматура на отводах стояков.
Тел.: (067) 239-13-14, (093) 703-16-33. Евгений.

Реклама:

Картинки

Контактные данные

Имя: Евгений
Контактные телефоны: 0937031633, 0672391314

Задать вопрос владельцу объявления

Email *
 
Повторите e-mail адрес *
 
Контактная информация
Имя:  
Контактные телефоны:  
Дополнительная информация для Вашего мини-сайта
Ваше сообщение будет отправлено на email адрес владельца объявления.: *
Введите код показанный на рисунке

Реклама: